Slimlift
Ascensori stretti e lunghi per edifici esistenti
Panoramica
Ideale per progetti di ammodernamento o per l’inserimento in edifici esistenti, SLIMLIFT MRL è l’ascensore compatto progettato per adattarsi agli spazi più ridotti.
La sua struttura snella consente l’installazione anche in vani stretti o irregolari, assicurando piena accessibilità a tutti i piani e consumi energetici contenuti. Ogni impianto è realizzato su misura, in armonia con l’architettura dell’edificio, e può essere personalizzato in ogni dettaglio estetico e funzionale.
in un piccolo impianto
Architettura snella e installazione semplificata
Opzioni con fossa e testata ridotta (en 81-21)
Opzioni con alimentazione monofase
Personalizzazione estetica e funzionale completa
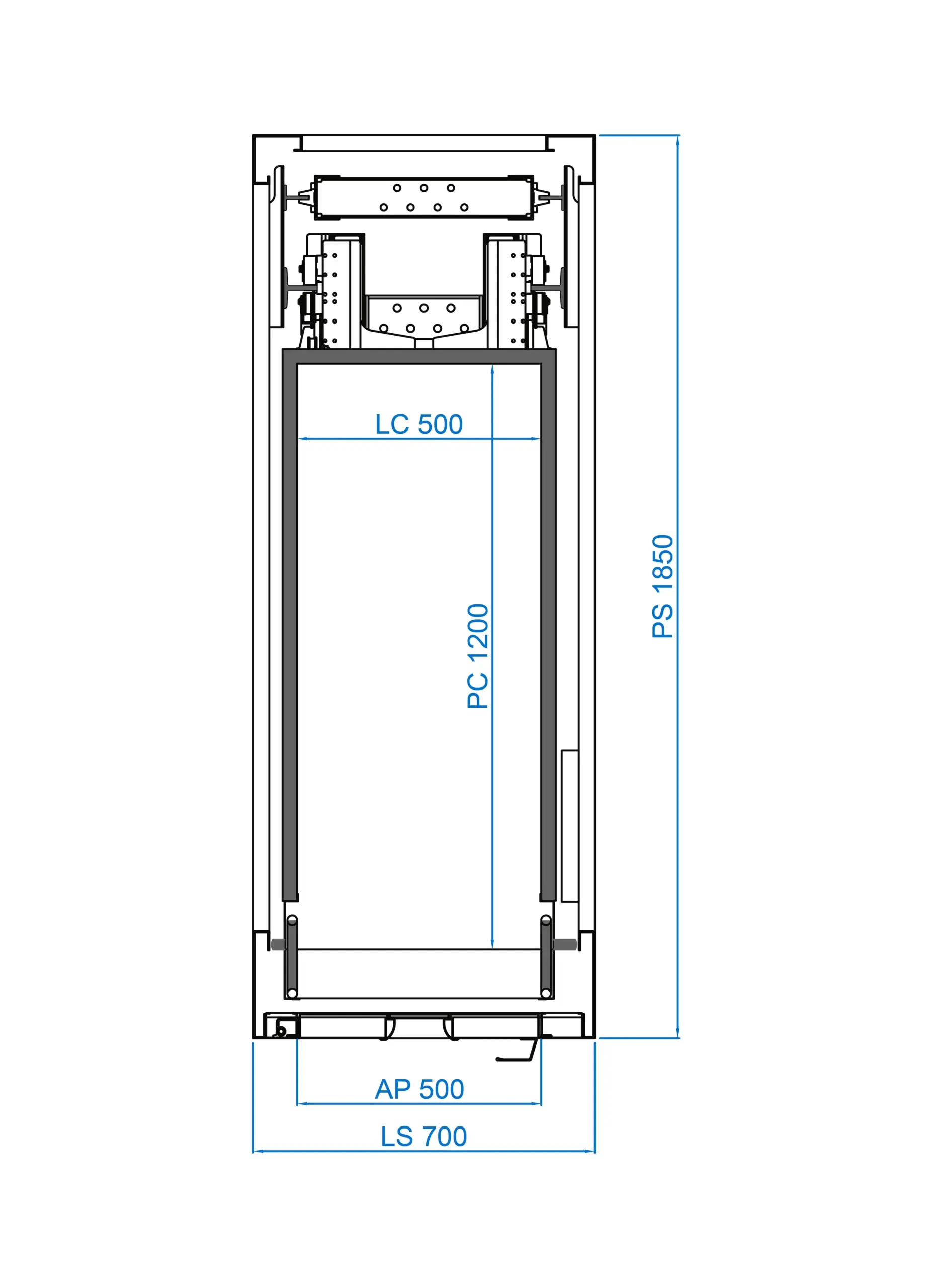
Configurazione
Slimlift MRL
Il nostro impianto compatto SLIMLIFT MRL con motore gearless è la soluzione ideale per edifici esistenti con spazi limitati, dove la flessibilità è fondamentale.
La sua architettura snella si adatta facilmente a qualsiasi ambiente: con porte a battente ai piani e soffietto in cabina, è configurabile a uno o due accessi adiacenti.
Grazie al motore gearless a magneti permanenti, SLIMLIFT MRL garantisce elevate prestazioni, efficienza energetica e un funzionamento estremamente silenzioso.
(EN 81-21)
(EN 81-21)
Non è necessario installare un nuovo contatore:
puoi usare la linea monofase già esistente.
Slimlift OLEO
Il nostro impianto compatto SLIMLIFT OLEO con azionamento idraulico è la soluzione ideale per edifici esistenti che richiedono grande adattabilità e robustezza in spazi ristretti.
La sua struttura leggera si integra con facilità in qualunque contesto: con porte a battente ai piani e soffietto in cabina, è configurabile a uno o due accessi adiacenti.
I costi contenuti e la facilità di installazione fanno di SLIMLIFT OLEO la scelta ideale per interventi rapidi e vantaggiosi.
(EN 81-21)
(EN 81-21)
Personalizzazione






