Home / Prodotti / Ascensori compatti / Brooklyn MRL
Brooklyn MRL
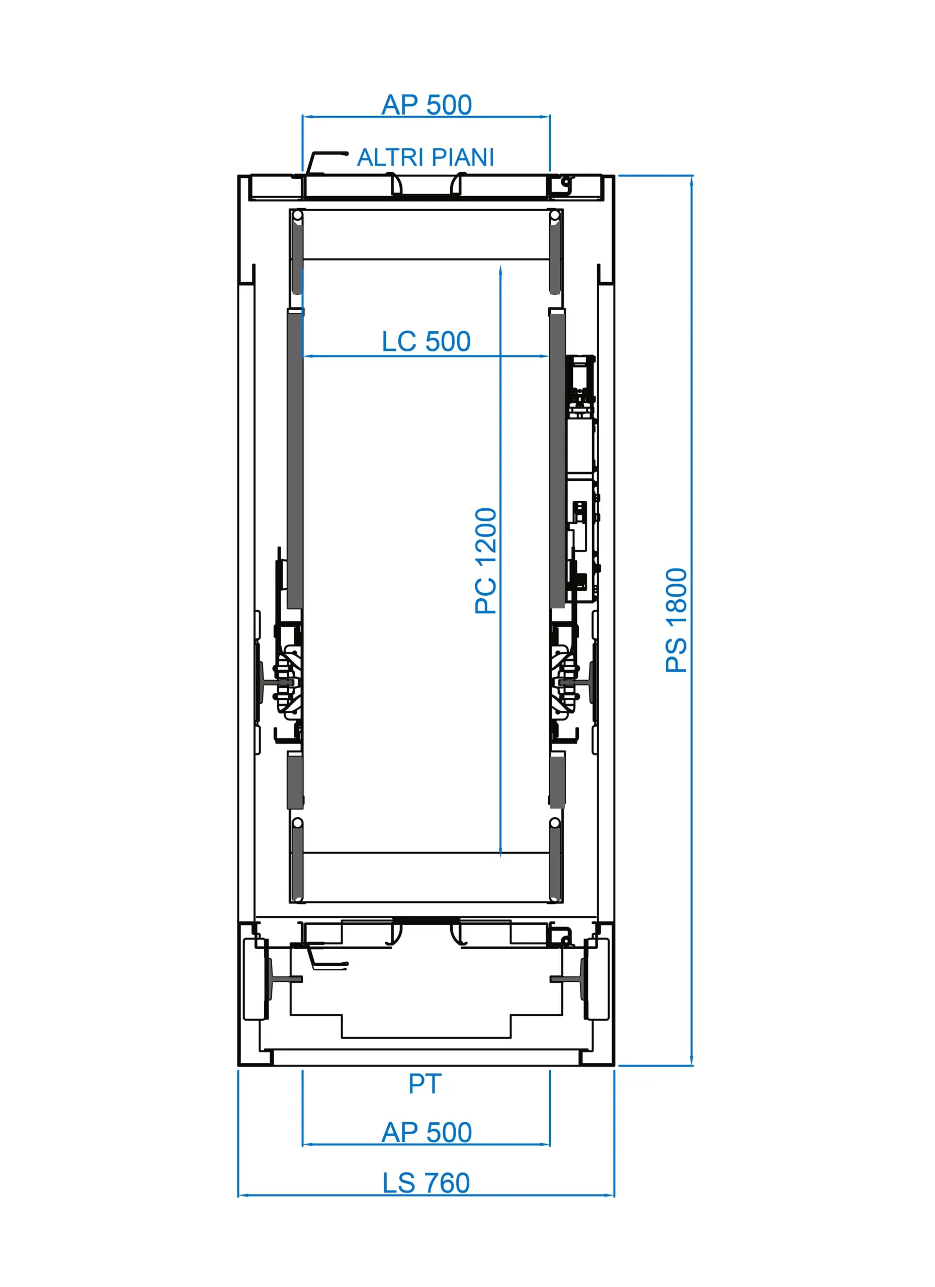
L’impianto a ponte che si adatta al vano scala
Panoramica
Una soluzione che trasforma il vincolo in possibilità
Progettato per edifici esistenti o interventi di ammodernamento, Brooklyn è l’ascensore a ponte pensato per vani in cui l’ingresso principale e gli sbarchi si trovano su lati opposti. Una soluzione intelligente che migliora l’accessibilità e il comfort quotidiano, rendendo gli spazi più fruibili e inclusivi anche per persone anziane o con mobilità ridotta.
Benefici,
che si notano a ogni livello
che si notano a ogni livello
Installabile anche in presenza di piani interrati
Ridotto assorbimento energetico
Opzioni con fossa ridotta (en 81-21)
Personalizzazione estetica totale
Configurazione
Brooklyn MRL
La soluzione che fa la differenza
Il nostro impianto a ponte BROOKLYN con motore gearless è progettato per edifici esistenti con ingresso principale su un lato e pianerottoli sul lato opposto.
La struttura compatta si adatta facilmente a vani scala molto stretti, consentendo l’installazione anche in presenza di piani interrati.
Il motore gearless garantisce un funzionamento silenzioso e ad alta efficienza, migliorando comfort e sostenibilità.
Compatto ad accesso opposto
Comfort e silenziosità
Consumi ridotti
Comfort e alta affidabilità
Motore Gearless in vano corsa
Opzione fossa ridotta
(EN 81-21)
(EN 81-21)
Disponibile per piani interrati
Alimentazione monofase
Non è necessario installare un nuovo contatore:
puoi usare la linea monofase già esistente.
Personalizzazione
Tu immagini noi realizziamo
Progettato per integrarsi armoniosamente in ogni contesto architettonico, il tuo impianto diventa un equilibrio perfetto tra stile e funzionalità. Ogni elemento è completamente personalizzabile: porte di piano e cabina , strutture vano , castelletti, cabine, materiali e finiture. Colori, rivestimenti e accessori vengono scelti su misura per creare una soluzione unica, pensata attorno alle tue esigenze estetiche e tecniche.
Hai bisogno di informazioni o desideri parlare con un esperto?
Siamo a tua disposizione per offrirti supporto e consulenza sul tuo prossimo impianto.
Compila il form o contattaci: il nostro team tecnico è pronto ad ascoltarti.



